← Zpět na nabídku
Apartmán C, Apartmány Mariánská

Apartmány Mariánská · Jednotka C

Apartmán C

Nebytový prostor · DPH 21 %

Vzdušný apartmán v prvním patře s výhledem do hor, ideální pro páry i menší rodiny

3+kk
Dispozice
70,44 m²
Plocha
1. patro
Podlaží
7 995 000 Kč
Cena s DPH

O apartmánu

První patro, velká okna, výhled do hor. Světla je tu dost od rána do večera — a vysoké stropy, typické pro školní budovy 19. století, dávají prostoru vzdušný charakter, který standardní bytová výstavba nedokáže napodobit. Kompletně zařízený, 150 metrů od vleku.

Apartmán C se nachází v 1. patře historické budovy z roku 1887. Velká okna poskytují výhled do krajiny a dostatek přirozeného světla. Vysoké stropy, typické pro školní budovy 19. století, dávají prostoru vzdušný charakter.

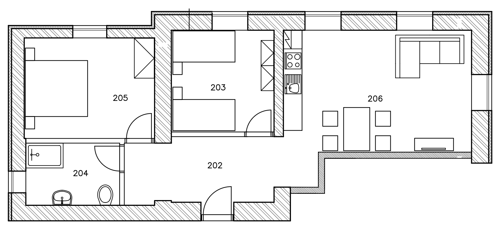
Místnosti

Předsíň202
Pokoj203
Koupelna a toaleta204
Ložnice205
Obývací pokoj s kuchyní206
Celková plocha70,44 m²

Kompletně zařízeno

Nastěhovat se ihned s taškou. Kuchyně, nábytek, vše připraveno.

Koupelna s italským velkoformátem

Prémiové obklady a dlažba, kvalitní sanitární vybavení

150 metrů od vleku

Lyžáky si obujete doma, na svah pěšky. Tanvaldský Špičák 4 minuty autem.

Výhled z prvního patra

Vyvýšená poloha, výhledy na hory ze všech oken. Přízemí tohle nenabídne.

Půdorys

Půdorys Apartmánu C

Půdorys · Apartmán C · 1. patro · kliknutím zobrazit větší

Umístění v budově · Apartmán C

Umístění v budově · 1. patro · kliknutím zobrazit větší

Stáhnout půdorys jako PDF

Fotogalerie

Sjednejte si prohlídku

Apartmán je připraven k prohlídce. Rekonstrukce je dokončena, byt je plně zařízen. Cenu sdělíme individuálně.